
SENIOR THESIS
Lansing, MI
Completed May 2023
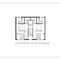
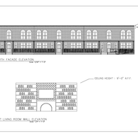
PROJECT STATEMENT
The objective of my Senior Thesis project was to pitch an idea to local developers for a residentially zoned plot of land in the surrounding area. I created a townhome community where the design tied back to the historic nature of the site. I utilized a mixture of classical and contemporary elements to cultivate a timeless, dynamic design. I created the technical drawings in AutoCAD and the renders in SketchUp and Enscape.






