
MOODY KITCHEN
Franklin, MI
Completed July 2024
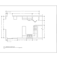
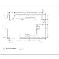
PROJECT STATEMENT
The clients for this project requested mock ups for a future kitchen remodel. They wished to see a dark, moody, and spacious kitchen with dramatic marble and gold accents. I worked in AutoCAD to create the floor plan of this proposed design and then worked in SketchUp and Enscape to create the renders.




